Startseite » Immobilien » Grünblick. Lage. Potential. – Haus in begehrter Wohngehend am Wiener Stadtrand!

Architektenhaus mit Weitblick
In ruhiger Lage am westlichen Stadtrand Wiens gelangt dieses interessante Einfamilienhaus mit Ausblick zum Verkauf.
Die Liegenschaft überzeugt durch ihre besondere Positionierung, die ein hohes Maß an Privatsphäre bietet und einen freien Blick in die umliegende Grünlandschaft.
Die bestehende Bausubstanz bietet eine solide Grundlage, während die durchdachte Struktur vielfältige Möglichkeiten zur Neugestaltung und Anpassung an moderne Wohnbedürfnisse eröffnet.
Das Haus richtet sich insbesondere an Käufer, die den Wert von Lage, Aussicht und Individualität erkennen.
Die Kombination aus naturnahem Wohnen, guter Erreichbarkeit der Wiener Innenstadt macht diese Liegenschaft zu einer seltenen Gelegenheit im Wiener Westen.
Zur Raumaufteilung
Erdgeschoss
mit Zugang zur sonnigen Terrasse und zum Garten
1. Stock
Zugang zur Terrasse und Übergang zu einem Hobbyraum im Dachboden des vorderen Haustraktes
Dachgeschoss
Zugang zur ca. 54 m² großen Dachterrasse
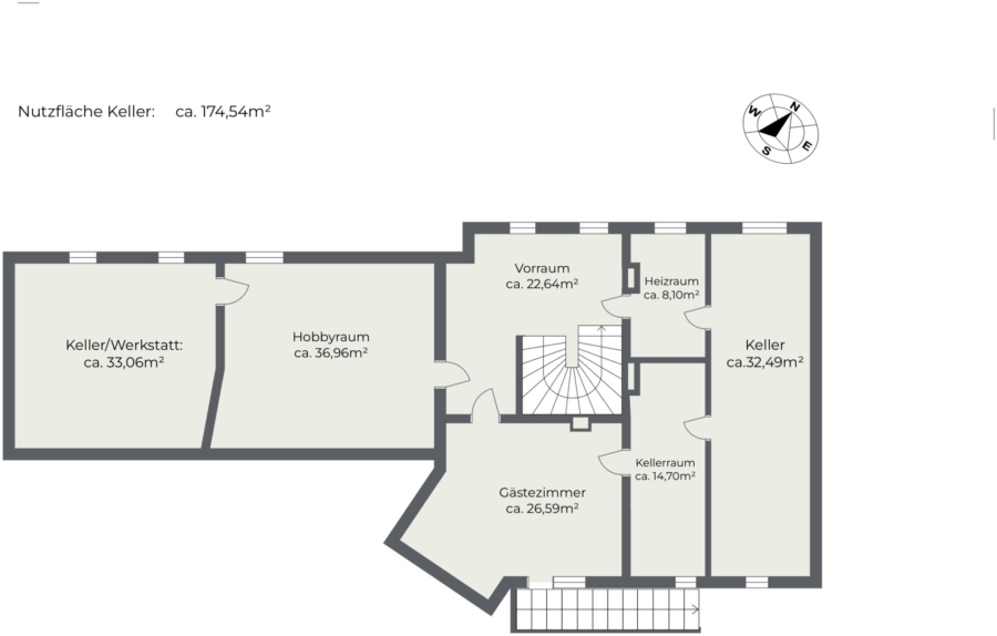
Keller
Highlights
Eine Liegenschaft für Kenner, die Lage und das Entwicklungspotenzial zu schätzen wissen – und daraus ein individuelles Zuhause mit nachhaltigem Wert schaffen möchten.
Besichtigung
Videobesichtigung vorab möglich. Besichtigungen nach Vereinbarung.
Verfügbar nach Vereinbarung.
Finanzierung
Gerne beraten wir Sie unverbindlich über mögliche Finanzierungen.
IFIN Immobilien arbeitet seit langem mit allen namhaften Banken und Bausparkassen zusammen.
Der Vermittler ist als Doppelmakler tätig.
Infrastruktur / Entfernungen
Gesundheit
Arzt <1.500 m
Apotheke <500 m
Klinik <5.500 m
Krankenhaus <4.000 m Kinder & Schulen
Schule <1.000 m
Kindergarten <500 m
Universität <2.500 m
Höhere Schule <8.000 m Nahversorgung
Supermarkt <500 m
Bäckerei <500 m
Einkaufszentrum <500 m Sonstige
Geldautomat <500 m
Bank <500 m
Post <500 m
Polizei <500 m Verkehr
Bus <500 m
Straßenbahn <3.500 m
U-Bahn <3.500 m
Bahnhof <500 m
Autobahnanschluss <1.000 m Angaben Entfernung Luftlinie / Quelle: OpenStreetMap
Die Liegenschaft befindet sich in einer ruhigen und grünen Wohnlage im Westen Wiens, die durch ihre ausgewogene Kombination aus naturnahem Wohnen und urbaner Erreichbarkeit überzeugt.
ÖFFENTLICHE ANBINDUNG
• Bahnhof Wien Weidlingau (7 Gehminuten) -> nach Wien Westbahnhof;
• Buslinie 50A, N49 -> zum Bahnhof Hütteldorf;
Die Wiener Innenstadt ist sowohl mit dem Auto als auch öffentlich in gut erreichbarer Distanz gelegen und ermöglicht damit eine komfortable Anbindung an das Stadtzentrum.
Zu Fuß erreichbar:
• Kindergärten
• Volksschule & Mittelschule
• Spielplätze
• Ärzte Zentrum im Auhofcenter
In unmittelbarer Nähe eröffnet sich mit dem Wienerwald eines der bedeutendsten Naherholungsgebiete Wiens, das mit weitläufigen Spazier-, Wander- und Radwegen ein vielfältiges Freizeitangebot bietet. Auch das Schloss Schönbrunn mit seinen großzügigen Parkanlagen ist in kurzer Zeit erreichbar und unterstreicht die Attraktivität dieser Wohnlage.
Das nahegelegene Auhof Center bietet eine umfassende Infrastruktur mit zahlreichen Einkaufsmöglichkeiten, internationalen Marken sowie einem breiten gastronomischen Angebot. Ergänzt wird dies durch eine vielfältige Gastronomieszene in der Umgebung, die von klassischen Wiener Lokalen bis hin zu modernen Restaurants reicht.
Wenn Sie die Immobilien-Karte anzeigen, übertragen Sie Daten an Google Maps (Datenschutzerklärung).
Die dargestellte Position der Immobilie ist nur eine ungefähre Angabe.
Was erwartet Sie? Neue Immobilien, Off-Market Angebot, Objektkalkulationen, Möglichkeiten zur Preisgestaltung, Know-How rund um Immobilien, Events, Einrichtungsideen uvm.